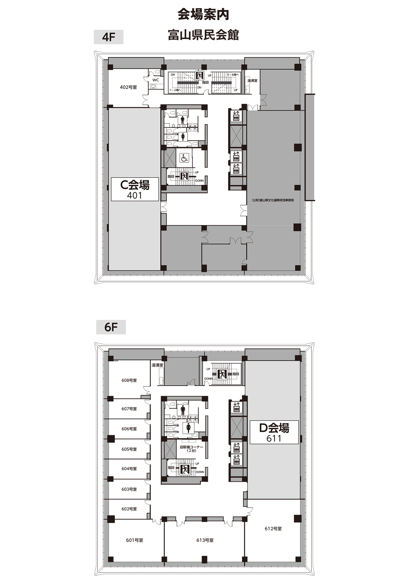
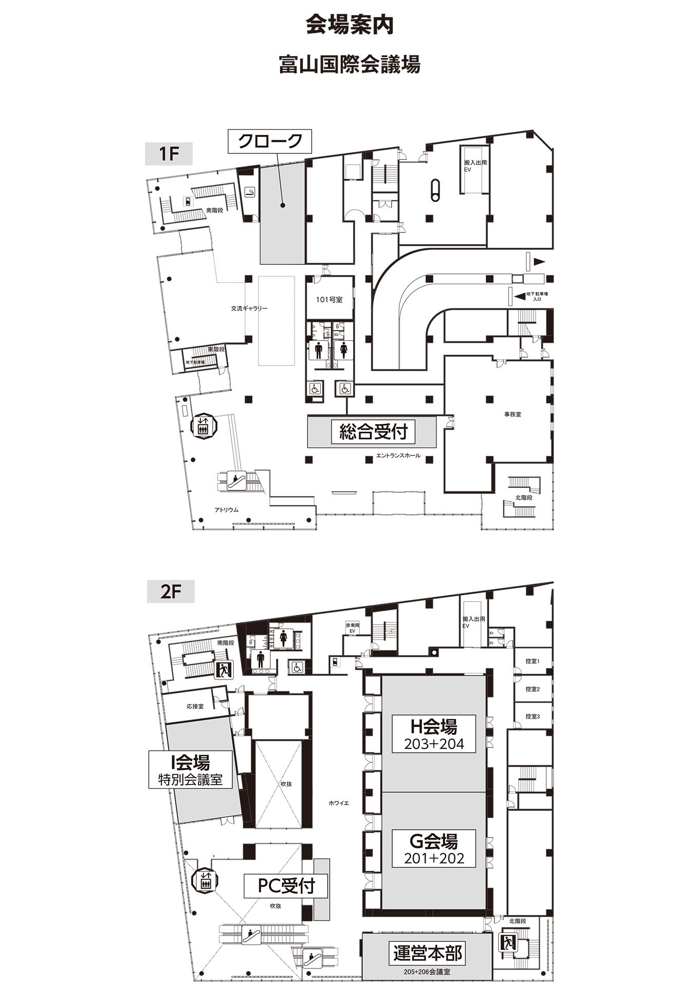
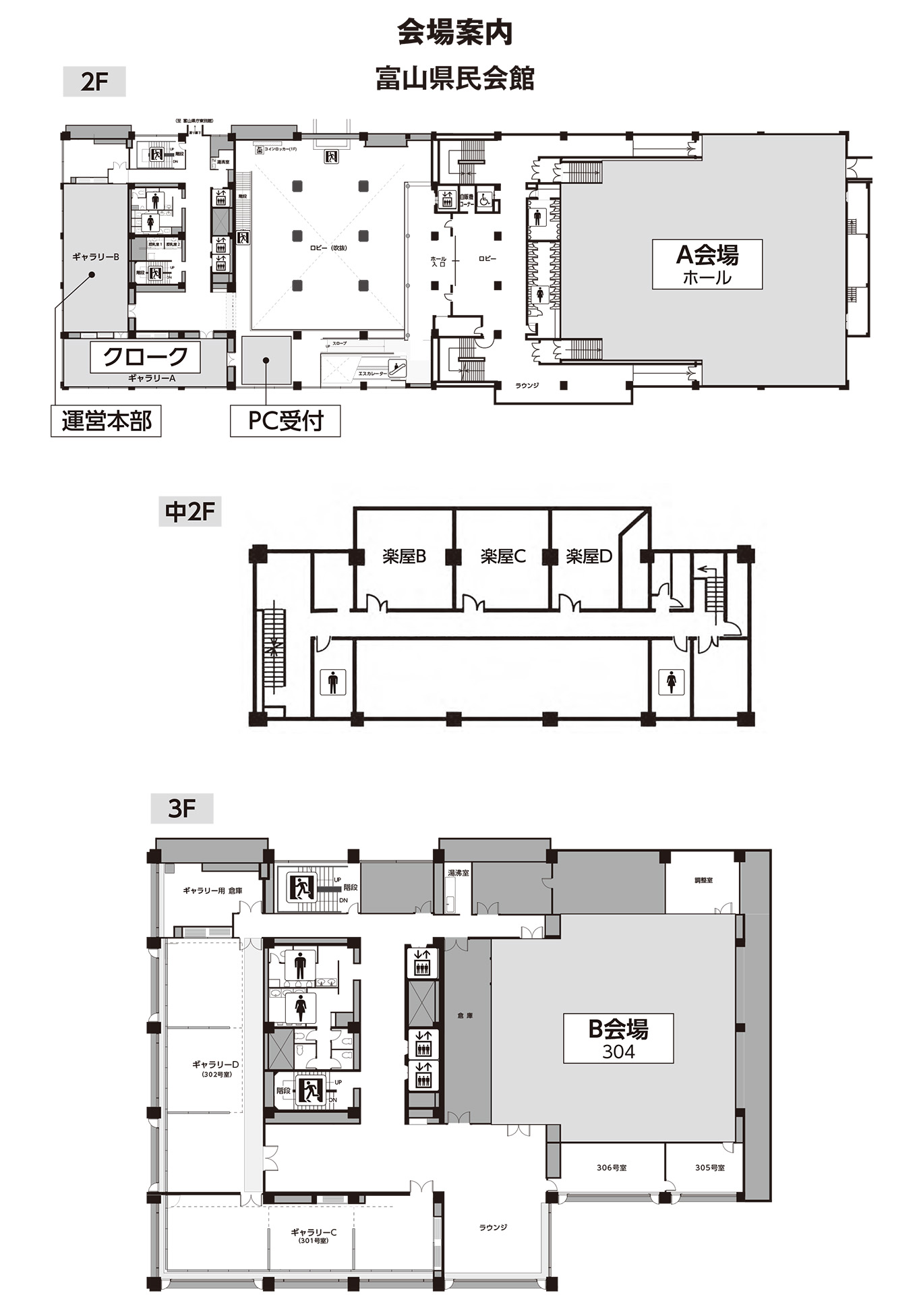
HOME 会長挨拶 開催概要 演題募集・採択通知一覧 日程表・プログラム 学術セミナーのご案内 事前参加登録のご案内 参加者・登壇者へのご案内 利益相反(COI)について 会場・交通案内 宿泊案内 託児所のご案内 単位・ポイント取得 関連学会ポスター・チラシ設置・幕間スライド表示/取材 企業の皆様へ(協賛等申込) スタンプラリー 後援団体一覧 プロモーション動画 リンク 会場・交通案内 会場のご案内 ・富山県民会館 〒930-0006 富山市新総曲輪4番18号 会場アクセスページ ・富山国際会議場 〒930-0084 富山市大手町1番2号 会場アクセスページ 会場周辺MAP